BEST OFFERS BY 25th MARCH - OPEN INSPECTION SATURDAY 13th MARCH, 11AM.
By expression of interest, this is your chance to own a rare, riverfront property in tranquil Wellington.
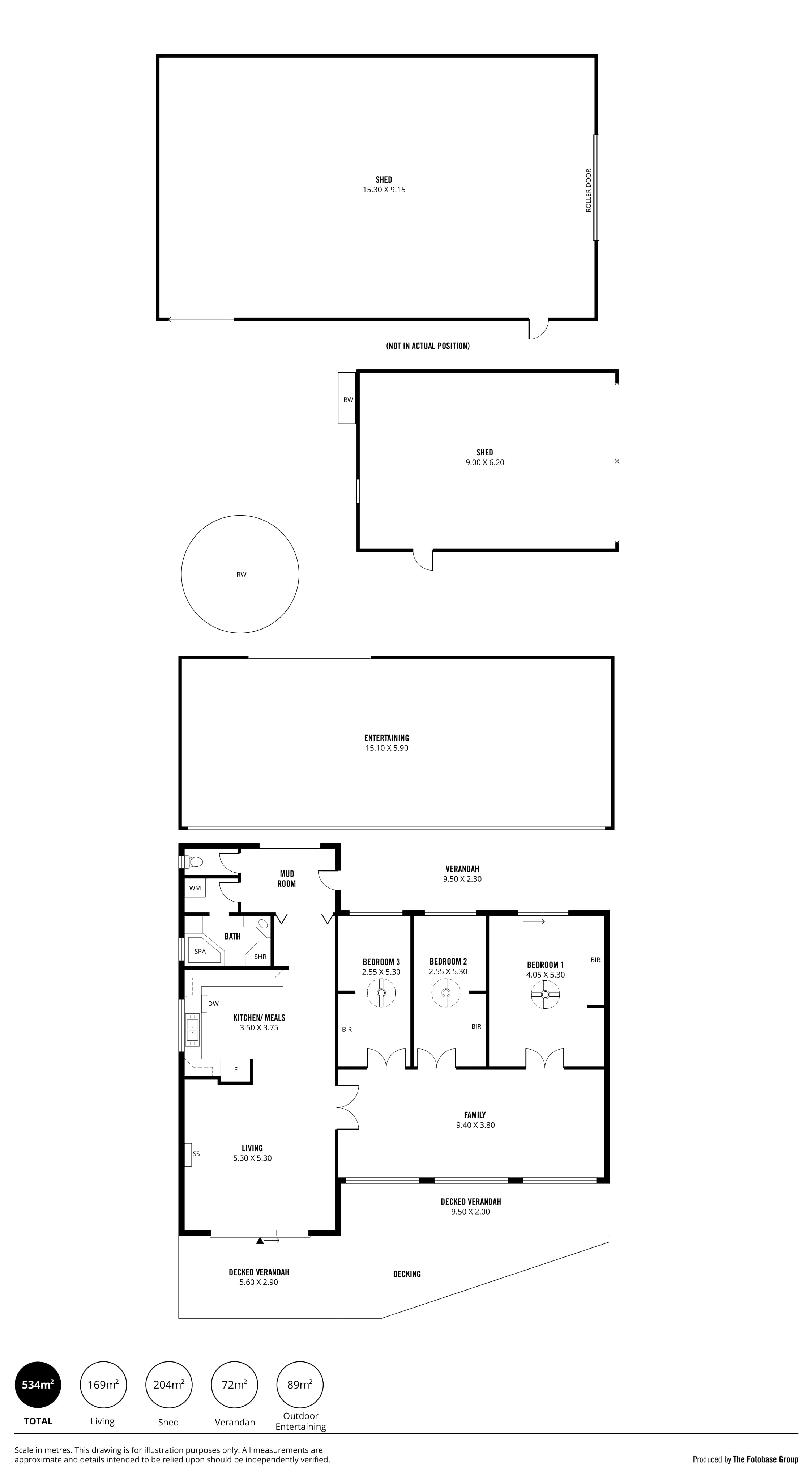
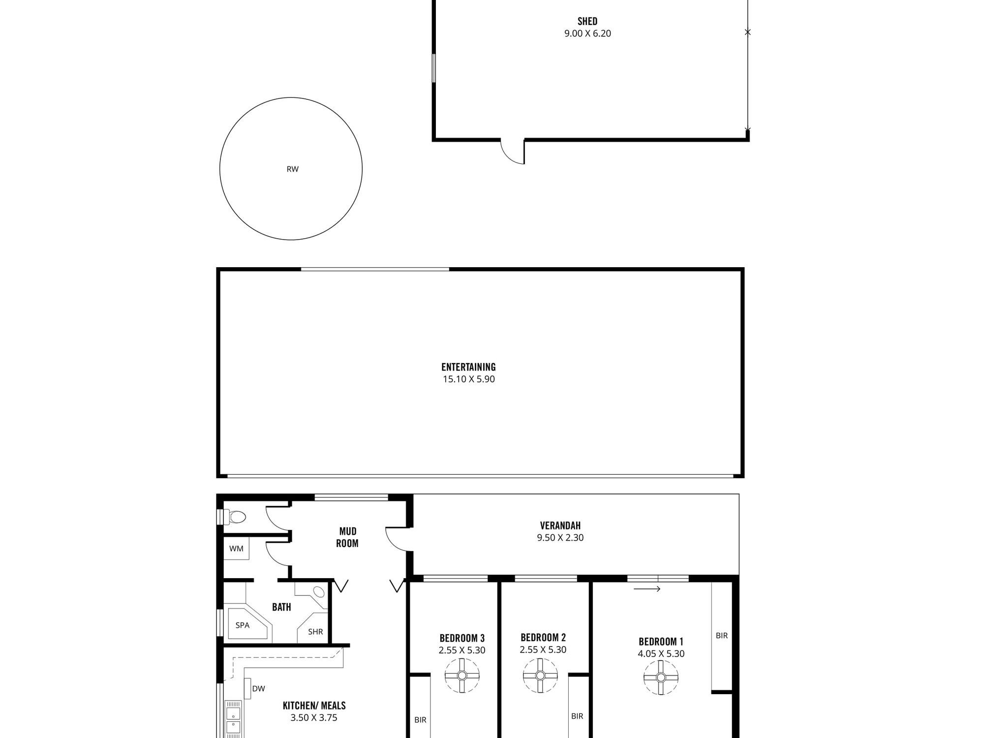
Located on a no through road, the property boasts a 25 metre river frontage with permanent jetty. The brick veneer home has three good sized bedrooms, all with built in robes and ceiling fans. Enjoy commanding river views from the 10x4m sunroom with floor to ceiling windows, or the adjacent family room. Through the glass sliding doors from the family room, you are welcomed to the timber undercover deck, spanning the width of the house – perfect for soaking up the sun while watching river boats float past.
The kitchen has timber cabinetry with plenty of cupboard space, dishwasher, ceramic cook top and stainless steel electric oven. The kitchen is located conveniently close to the rear 15x6 metre entertaining area. The bathroom contains a corner spa and separate shower. Outside is for river fun. A full width timber deck with entertaining area under main roof, plus a verandah for climate control to the sunroom. The tiered yard to the river has concrete and dedicated grass paths with a fully reticulated watering system. A 10x3 metre jetty compliments the river landing.
The home is climate controlled via a reverse cycle air conditioner, double insulation (and sisalation) and internal rockwool. Plenty of shedding for boats and vans with a 6x10 metre double garage and 15x9 meter shed with high access for caravans and boats.
20,000 litre rainwater storage plumbed to the home and river water for the lawns and gardens negates any water bills.
Public boat ramp and local hotel within walking distance.
Don’t miss out on a rare opportunity to own an absolute riverfront property in sought after Wellington.
**Expressions of interest in writing to Agent Adam Hurle [email protected] prior to 5pm, Thursday 25th March 2021 - Contact us for an Expression of Interest Form**
OPEN INSPECTION SATURDAY 13th MARCH, 11AM.
What we love;
River frontage
Quiet location
Low maintenance yards
Ample sheds
Call Adam Hurle on 0439 545 193 or [email protected] for more information.
Land: 1,797 sqm
Council: Rural City of Murray Bridge
Rates: $3,288 per annum
CT: 5787/529
Zoning: Country Township
Want to know where your property sits in the market?
We’ll provide you with a free no obligation market update on your home or investment. Call Adam on 0439 545 193 to arrange a property complimentary property appraisal.
Disclaimer
Whilst every precaution has been taken to ensure that the information contained herein is true and accurate, we accept no responsibility and disclaim all liability in respect of any errors, omissions, inaccuracies or misstatements that may occur. Prospective purchasers or tenants should make their own enquiries to verify the information contained herein and do their own research.
Permanent jetty
Fully reticulated watering system




























Join our mail list today
Want to keep up to date with what's happening in the Coorong? Add your name to our newsletter below.