This double storey North facing home is all set for you to simply relax or take advantage of a holiday rental investment opportunity in the Wellington Marina.
Located just 8 minutes from Tailem Bend and 12 minutes to The Bend Motorsport Park, this property has ample opportunity.
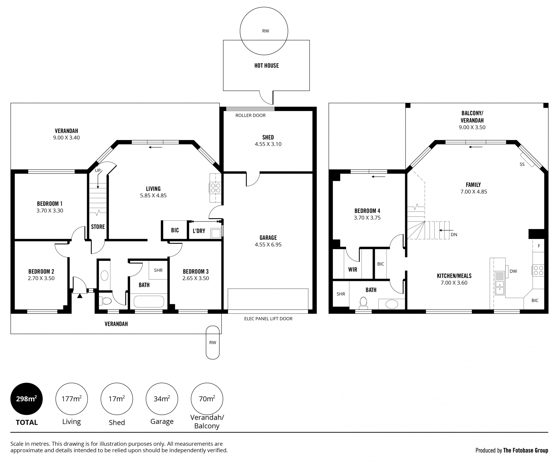
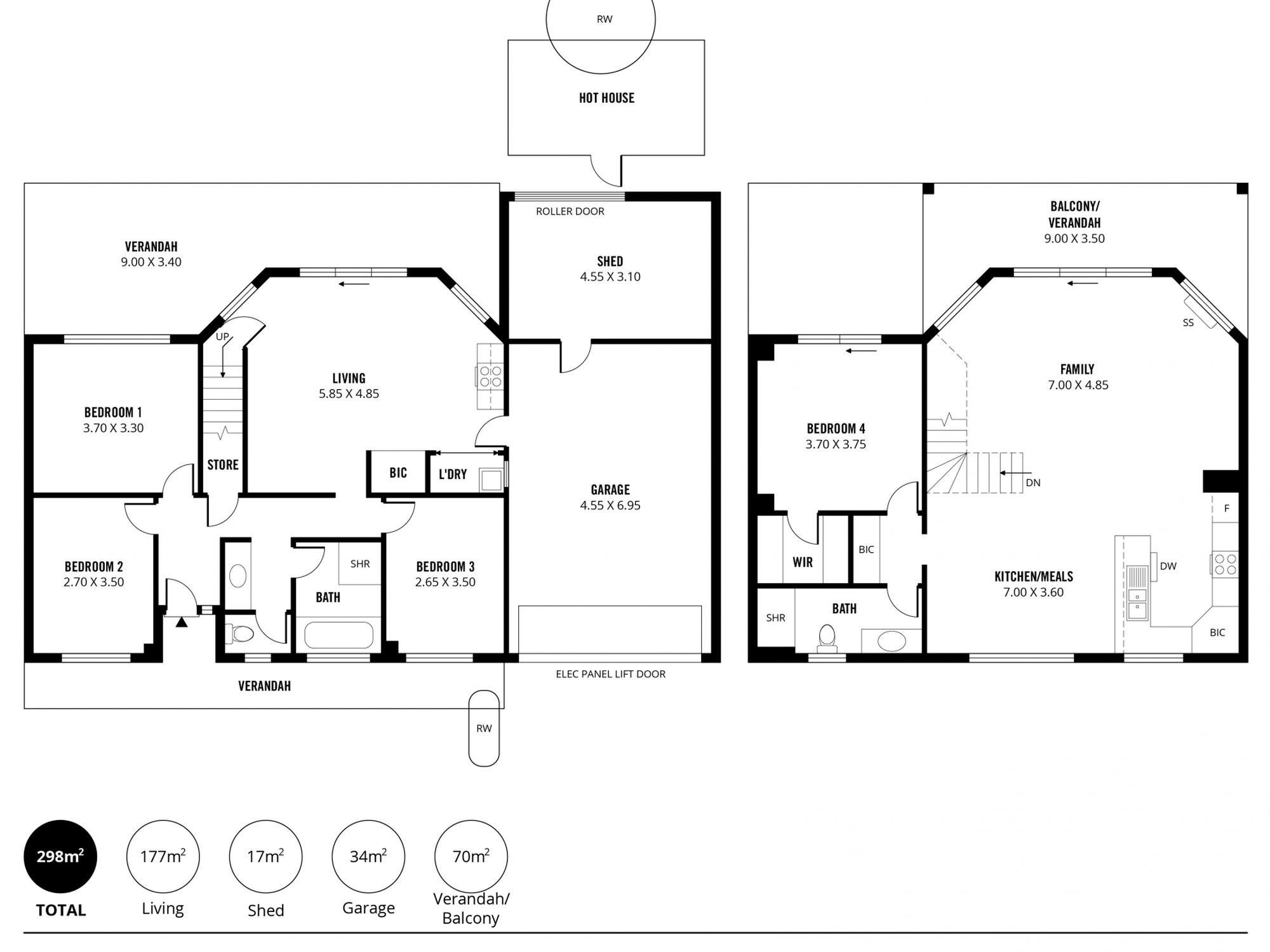
Located in a quiet cul-de-sac, the property features 4 good size bedrooms with the Master Bedroom containing a walk-in robe and direct access to the waterside balcony. The family or guest bedrooms are located downstairs with the bathroom containing walk in shower and bath, and separate toilet and vanity. There is a kitchenette in the downstairs living area providing guests or family to have their own space.
Upstairs, the kitchen overlooks the meals and family room, which is a large open space. The family room has commanding views down the Marina and into the River Murray.
The upstairs bathroom caters for the Master Bedroom and guests.
The panel lift door garage has convenient access directly into the home and a shed/workshop located within the garage.
Outside, the property has a low maintenance garden, complete with raised planter boxes, a private jetty and verandah entertaining, plenty of rain water storage and the upstairs balcony is roomy and perfect for Summer BBQ’s.
If you’re into boating, kayaking, fishing or simply relaxing, this property is for you.
Land: 756sqm
Council: Coorong District Council
Zone: Neighborhood (Residential)
Built: 2014
Call Adam Hurle for a private inspection 0439 545 193
Want to know where your property sits in the market?
We’ll provide you with a free no obligation market update on your home or investment. Call Adam on 0439 545 193 to arrange a property complimentary property appraisal.
Disclaimer
Whilst every precaution has been taken to ensure that the information contained herein is true and accurate, we accept no responsibility and disclaim all liability in respect of any errors, omissions, inaccuracies or misstatements that may occur. Prospective purchasers or tenants should make their own enquiries to verify the information contained herein and do their own research.

































Join our mail list today
Want to keep up to date with what's happening in the Coorong? Add your name to our newsletter below.